You are using an outdated browser. For a faster, safer browsing experience, upgrade for free today.
  • 4 kambariai
  • 2/2
  • 100 m2
  • 2017 m.

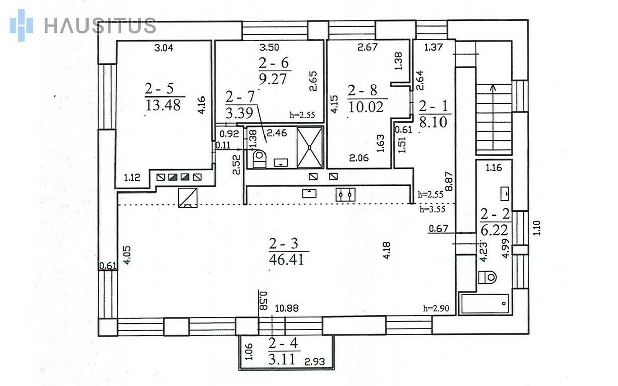
PARDUODAMAS 4 K. BUTAS - NAMO DALIS SU 2,52 A. ŽEMĖS SKLYPU K. DONELAIČIO G., PANEVĖŽYJE. BENDRI PRIVALUMAI: – BUTUI PRIKLAUSO UŽDARAS NAMO KIEMAS SU DVEJOMIS PARKAVIMO VIETOMIS; – PARDUODAMAS SU VISAIS BALDAIS IR BUITINE TECHNIKA; – GRINDINIS ŠILDYMAS VONIOS KAMBARIUOSE; – DVI ATSKIROS WC VIETOS: KAMBARYS SU VONIA IR KAMBARYS SU DUŠU; – REKUPERACIJOS SISTEMA; PARDUODAMAS 4 K. BUTAS - NAMO DALIS SU 2,52 A. ŽEMĖS SKLYPU K. DONELAIČIO G., PANEVĖŽYJE. BENDRI PRIVALUMAI: – BUTUI PRIKLAUSO UŽDARAS NAMO KIEMAS SU DVEJOMIS PARKAVIMO VIETOMIS; – PARDUODAMAS SU VISAIS BALDAIS IR BUITINE TECHNIKA; – GRINDINIS ŠILDYMAS VONIOS KAMBARIUOSE; – DVI ATSKIROS WC VIETOS: KAMBAFRYS SU VONIA IR KAMBARYS SU DUŠU; – REKUPERACIJOS SISTEMA; – ORO KONDICIONIERIAI; – VISI BUTO RADIATORIAI REGULIUOJAMI; – VANDENS FILTRAI; – BOILERIS; – ŽIDINYS; – APSAUGOS SISTEMA; – ATLIKTAS VISO NAMO KAPITALINIS REMONTAS, PAKEISTA INŽINIERINĖ SISTEMA; – NAMO SIENOS APŠILTINTOS TERMOPUTOMIS; – PATVIRTINTAS VISOS DONELAIČIO GATVĖS REKONSTRUKCIJOS PROJEKTAS, BUS PILNAI ATNAUJINTA GATVĖ. BENDRA INFORMACIJA: – Adresas – K. Donelaičio g. 4, Panevėžys; – Bendras plotas – 100,00 kv.m.; – Sklypo plotas – 2,52 a.; – Kambarių skaičius – 4; – Aukštas – 2/2; – Namo tipas – mūrinis; – Statybos metai – 1920m; – Rekonstravimo metai – 2017m; – Šildymas – dujinis, arba kondicionieriumi, arba židiniu. BUTO IŠPLANAVIMAS: – Kambarys sujungtas su virtuve – 46,41 kv.m.; – Kambarys – 13,48 kv.m.; – Kambarys – 10,02 kv.m.; – Kambarys – 9,27 kv.m.; – Vonios kambarys su tualetu – 6,22 kv.m.; – Vonios kambarys su tualetu – 3,39 kv.m.; – Koridorius – 8,10 kv.m; – Įstiklintas balkonas – 3,11 kv.m; ĮRENGIMAS: – Langai – plastikiniai; – Sienos – dažytos, tualete ir vonioje – akmens masės plytelės; – Grindys – ąžuolinis parketas, tualete ir vonioje – akmens masės plytelės; – Durys – išorės – šarvo, vidaus – medinės; – Integruota moderni apšvietimo sistema; – Sumontuota apsaugos sistema ir dumų detektoriai; – Sumontuoti tinkleliai nuo uodų; – Miesto vandentiekis ir nuotekų sistema. Buto interjerą kūrė vienA žymiausių architektų ir dizainerių komandų. Pagrindinio gyvenamojo kambario langai orientuoti į pietų pusę, todėl bute visada bus saulėta ir šilta. Miegamųjų kambarių langai orientuoti į šiaurės pusę. Svetainė su virtuve, trys kambariai bei du san.mazgai - tai idealus išplanavimas patogiam Jūsų poilsiui. Manote, kad tai galėtų būti Jūsų gyvenamoji vieta? Susitikime apžiūroje!

  • Signalizacija
  • Šarvuotos durys
  • Balkonas
  • Rūsys
  • Vonia
  • Kondicionierius
  • Detalus planas
  • Rūbinė
  • Židinys
  • Su baldais
  • Internetas
  • Buitinė technika
  • Sandėliukas
  • Virtuvė sujung. su kamb.
  • Langai su stiklo paketais
  • Vieta automobiliui
  • Šaldytuvas
  • Terasa
  • Skalbimo mašina
  • Tualetas ir vonia atskirai
  • Įvestos dujos
  • Atskiras įėjimas
  • Nauja elektros instaliacija
  • Nauja kanalizacija
  • Galima deklaruoti gyv. vietą
  • Viryklė
  • Indaplovė
  • Rekuperacinė sistema
  • Šildomos grindys
  • Dušas
  • Virtuvės komplektas
  • Plastikiniai vamzdžiai
  • Dalintis šiuo skelbimu