You are using an outdated browser. For a faster, safer browsing experience, upgrade for free today.
  • 1 kambariai
  • 4/5
  • 30.98 m2
  • 1985 m.

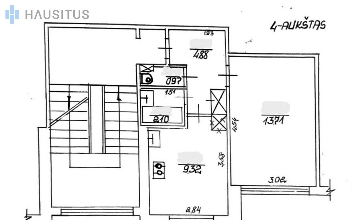
PARDUODAMAS 1 KAMBARIO BUTAS KNIAUDIŠKIŲ G., PANEVĖŽYJE BENDRI PRIVALUMAI: – RŪSYS; – ERDVI AUTOMOBILIŲ AIKŠTELĖ; – STRATEGIŠKAI PATOGI VIETA; – ARTI MOKYKLOS, DARŽELIAI, PREKYBOS CENTRAI. BENDRA INFORMACIJA – Vieta: Kniaudiškių g. 59, Panevėžys; – Plotas: 30,98 kv. m.; – Kambarių skaičius: 1; – Aukštas: 4 iš 5; – Statybos metai: 1985; – Pastato tipas: blokinis. ĮRENGIMAS: – Grindys – laminatas, vonioje – plytelės; – Sienos – tapetai, vonioje – plytelės; – Langai – plastikiniai; – Durys: lauko – šarvo, vidaus – medinės; – Apšvietimas – šviestuvai. BUTO PLANAS: – Kambarys – 13,71 kv. m.; – Virtuvė – 9,32 kv. m.; – Vonia – 2,10 kv. m.; – Tualetas – 0,97 kv. m.; – Koridorius – 4,88 kv. m. PIRKĖJAMS TARPININKAVIMO MOKESČIO NĖRA. HAUSITUS NT brokerė JUSTINA ZACHAREVIČIENĖ +370 603 29848 El. paštas: justina.zachareviciene@hausitus.lt Norite pirkti, parduoti ar nuomotis nekilnojamą turtą, o gal tiesiog reikia profesionalios konsultacijos? – Kreipkitės, visada rasiu, kaip Jums padėti! Kviečiu apžiūrai ir deryboms Jums patogiu laiku.

  • Šarvuotos durys
  • Rūsys
  • Vonia
  • Su baldais
  • Kodinė laiptinės spyna
  • Šaldytuvas
  • Įvestos dujos
  • Viryklė
  • Dalintis šiuo skelbimu